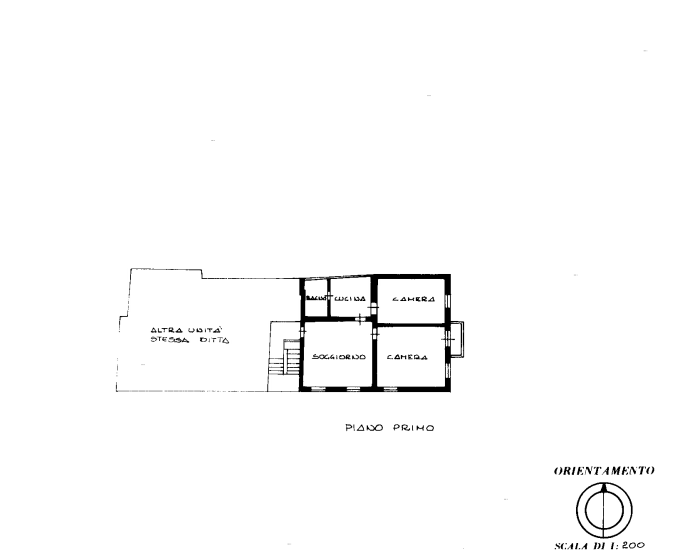
Proponiamo in esclusiva la vendita in blocco di due appartamenti situati nel cuore della rinomata zona Facciolati, a Padova. La proprietà si compone di un appartamento al piano terra di circa 75 mq e uno al primo piano di circa 65 mq, per una superficie totale di ben 140 mq. Gli immobili sono completamente da ristrutturare, rappresentando così l’occasione ideale per chi desidera personalizzare gli spazi secondo le proprie esigenze abitative o come interessante investimento immobiliare.
Gli ambienti attualmente presentano ampie finestre che donano luminosità agli interni e affacci gradevoli sul verde circostante. Le stanze sono caratterizzate da pavimenti originali in legno e ceramica decorata d’epoca, soffitti alti con lampadari classici e infissi in legno massello.
La posizione è strategica: il quartiere Facciolati offre tutti i principali servizi sotto casa – scuole primarie e secondarie, supermercati, negozi locali e fermate dei mezzi pubblici – oltre alla vicinanza ai poli universitari più importanti della città. Ottimi anche i collegamenti viari verso il centro storico (raggiungibile rapidamente) nonché verso le arterie stradali principali per chi necessita facilità negli spostamenti quotidiani.
Questa soluzione risulta perfetta sia per famiglie numerose sia per studenti o lavoratori fuori sede grazie alla flessibilità distributiva degli ambienti; inoltre può essere frazionata oppure mantenuta come unica unità ampia su due livelli.
Quadrante Casa offre inoltre servizi aggiuntivi come consulenze pratiche sull'accesso al mutuo e supporto burocratico attraverso collaborazioni con studi notarili, architetti, ingegneri, geometri ed avvocati.
La visita all'immobile sarà effettuata soltanto dopo un incontro conoscitivo presso la nostra sede.
Rif. NV005
Vendita in blocco: due appartamenti da ristrutturare a Padova, zona Facciolati
240.000 € / 140 / Vendita






















Contattaci